Acélszerkezet tervezés

Ipari technológiákhoz tervezett tartószerkezetek

Technológiai berendezések, tartályok és csőhidak speciális igényeire szabva.

Szabványkövető tervezés extrém üzemi feltételekre. Dinamikus terhelésekre, korrózióra és szélsőséges üzemi körülményekre tervezve.

Szoros együttműködés a technológiai és gépészeti tervezéssel és kivitelezéssel.

A koncepciótól a megvalósításig – működő ipari megoldásokat szállítunk. Nemcsak terveket, hanem üzemképes megoldásokat adunk át.

Főbb termékek:

  1. Gépészeti acélszerkezetek
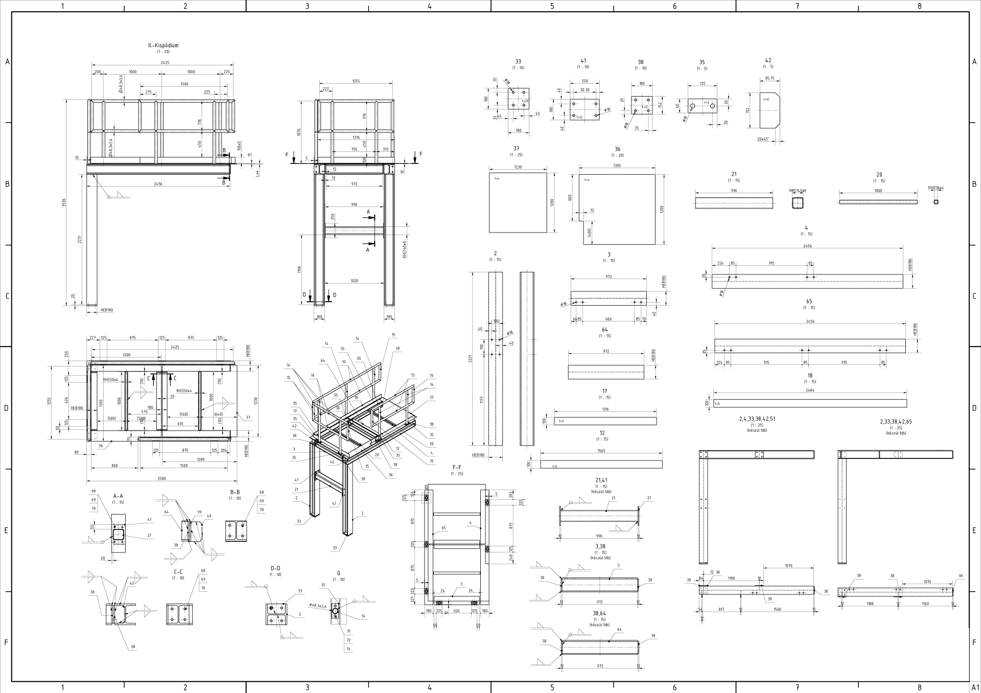
  2. Kezelőpódiumok
  3. Technológiai berendezések speciális acélszerkezetei
  4. Acél állványszerkezetek
  5. Ipari csőhidak

Kapcsolat

Címünk: 3591 Oszlár, Táncsics út 4.

Telefon: +36303648783 E-mail: enervo@enervo.hu